
Residencial Corruíras
2010 – 2013
Rua das Corruíras, São Paulo
SP, Brasil
O Residencial Corruíras está inserido dentro das ações da SEHAB/PMSP para a área da Operação Urbana Consorciada Água Espraiada, foi planejado para viabilizar o reassentamento dos moradores da Favela Minas Gerais, ocupação irregular lindeira à obra. O conjunto está implantado em um terreno com declividade acentuada próximo ao córrego Água Espraiada, de modo a oferecer uma oportunidade singular para a percepção do relevo e paisagem.
Prêmio
“O Melhor da Arquitetura” – Finalista – 2013
Ficha Técnica
Área Total
23.286 m2
Área Construída
21.404 m2
Unidades Habitacionais
244 apartamentos
Status
Concluído
Realização
PMSP – Secretaria Municipal de Habitação e Secretaria Municipal de Desenvolvimento Urbano



O projeto se desenvolveu tirando partido destas condicionantes ao dispor os dois blocos que compõem o conjunto de forma escalonada, com acessos pelas vias superior e inferior, explorando o desnível tanto para o melhor aproveitamento do terreno, o que permitiu um número maior de unidades (244) e pavimentos (7 e 9), como também um incentivo a uma mirada ao exterior, propiciada ao adotar a transparência de elementos vazados e perfurados, e pequenas varandas nas habitações.

Implantação



A opção em valorizar a circulação horizontal com passarelas como elemento estruturador e articulador do conjunto reforça a ideia do espaço coletivo como lugar da troca, numa referência à varanda presente na “casa brasileira” que olha ao pátio interno.

Plantas dos pavimentos tipo

Corte longitudinal leste – oeste




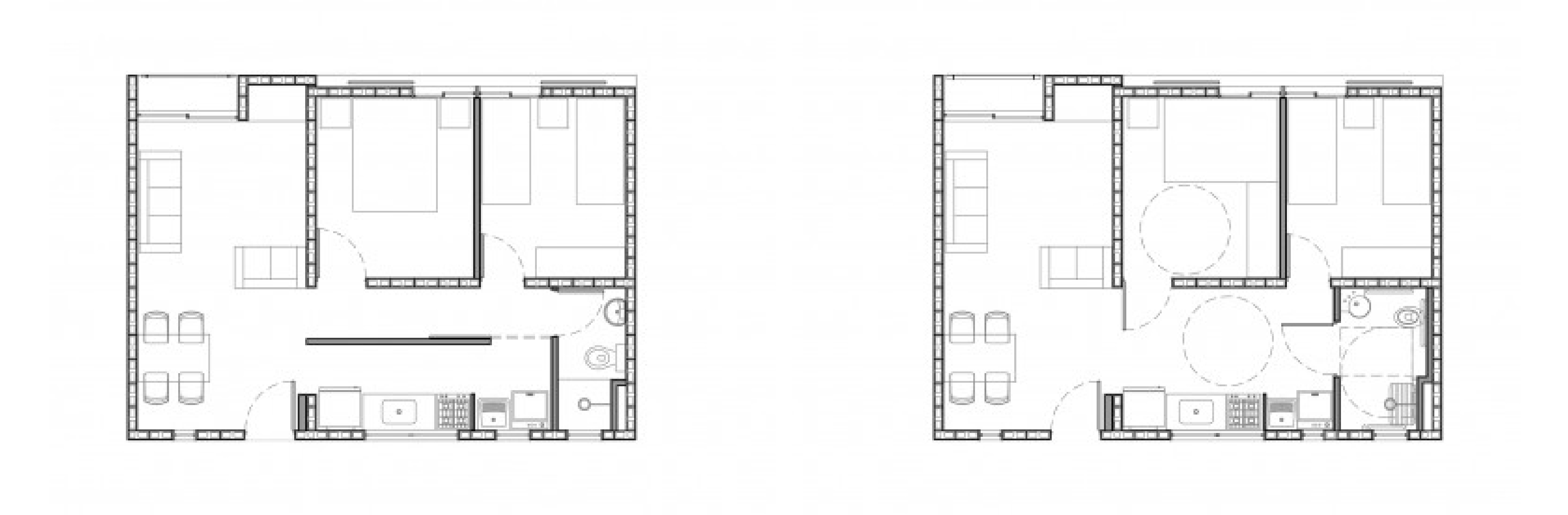
Plantas dos apartamentos: padrão e acessível

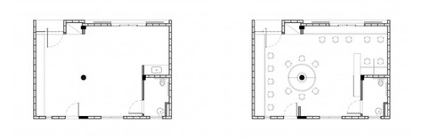
Plantas dos espaços de lavanderia e laser




Espaços complementares a moradia compõem uma rede de possibilidades de usos e atividades como o lazer, a recreação, a leitura e o estudo. No nível 777,50, estão localizados os salões para uso comunitário e área para estudo/leitura e no nível 772,06 está o pátio, lugares que permitem desde o banho de sol, da prosa até o encontro inesperado.