
Residencial Diogo Pires
2011
Jaguaré, São Paulo
SP, Brasil
O Residencial Diogo Pires se insere nas ações de urbanização da Favela Nova Jaguaré em São Paulo com o objetivo de realizar parte do reassentamento das famílias moradoras nas áreas de risco ou afetadas por obras de infraestrutura.
O projeto explora as relações entre público e privado ao propor espaços e usos variados, especialmente os estabelecidos no térreo, que enfatizam a importância da “vida coletiva” como elemento indispensável para a construção de uma cidade mais democrática.
Prêmio
IAB-SP – Habitação de Interesse Social – 2012- Menção Honrosa
Ficha Técnica
Área Construída
19.069 m2
Unidades Habitacionais
240 apartamentos
Realização
PMSP – Secretaria Municipal de Habitação e Secretaria Municipal de Desenvolvimento Urbano



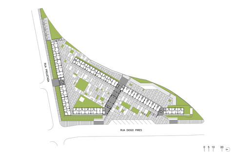
Localizado em um terreno com aproximadamente 7.950,00m2 é composto por 240 unidades habitacionais, 14 unidades comerciais e um conjunto de espaços destinados ao lazer, recreação e estudo, distribuídos em duas laminas com 6 e 8 pavimentos equipadas com elevadores.

Concepção Projetual
A inflexão do corpo principal conforma uma praça que articula os espaços coletivos, ora de domínio público ora privado, e os diversos usos como comércios, serviços e atividades comunitárias.




Planta do Térreo

1º Pavimento

2º e 3º Pavimentos

4º Pavimento

5º Pavimento

6º E 7º Pavimentos

Elevação do Conjunto
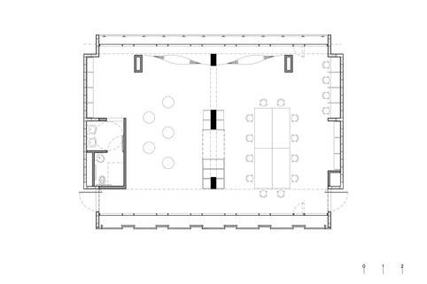
Junto à praça foi proposto um espaço comunitário que faz a transição entre o “dentro e fora”, cinco andares acima na cota 736.60 um espaço de contemplação como uma praça elevada, uma grande varanda, com vista para o pátio, para praça, para a cidade. O “olho” espaço destinado ao estudo e concentração esta localizado no nível 733.88 estabelecendo uma relação direta do conjunto com a cidade.

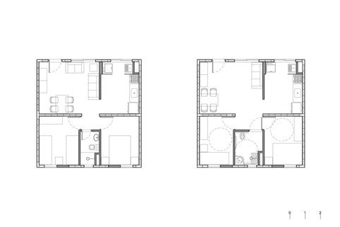
Unidades Habitacionais

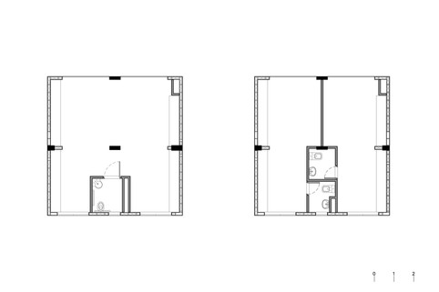
Unidades Comerciais

Sala de Leitura
O programa do edifício incorpora novas demandas implícitas na vida cotidiana. Espaços que darão suporte para atividades que qualificam a morada.