
Residencial Duarte Murtinho
2013 – 2016
Silvina Audi, São Bernardo do Campo
SP, Brasil
Prêmios
Vencedor do Type Directors Club New York Awards – TDC63
Prata no Latin American Design Awards 2016
Ficha Técnica
Área Total
3.558 m2
Área Construída
10.052 m2
Status
Concluído
Realização
Secretaria de Habitação (Prefeitura do Município de São Bernardo do Campo)




Implantação















Corte Longitudinal

Corte Longitudinal

Corte Transversal

Corte Transversal

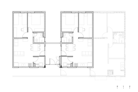
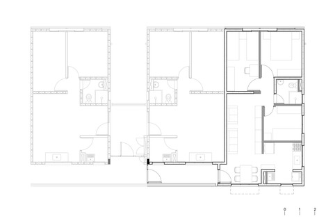
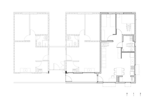
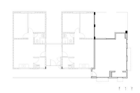
Unidade Habitacional

Unidade Habitacional

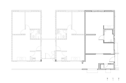
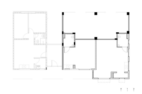
Unidade Habitacional PNE

Salão de Festas

Sala de Leitura

Comércio