
Residencial Kenkiti Simomoto
2008 – 2010
Avenida Kenkiti Simomoto, São Paulo
SP, Brasil
O Residencial Kenkiti Simomoto se insere nas ações de urbanização da Favela Nova Jaguaré em São Paulo com o objetivo de realizar parte do reassentamento das famílias moradoras das áreas de risco.
Implantado em um terreno com aproximadamente 4.846 m2, o conjunto é composto de 110 unidades habitacionais distribuídas em três edifícios com cinco pavimentos.
Nos espaços de uso coletivo interno ao conjunto foram criadas áreas de lazer e recreação destinadas à utilização dos mais diversos grupos. As coberturas das edificações, juntamente com o conjunto de espaços comuns, são qualificadas para uso coletivo e também têm o objetivo de favorecer a socialização entre os moradores.
Através da proposta de uma via de acesso público, que estabelece relação com o entorno, o conjunto oferece uma pequena praça com unidades para comércio.
Ficha Técnica
Área Total
4.846 m2
Área Construída
9.243 m2
Unidades Habitacionais
110 apartamentos
Status
Concluído
Realização
PMSP – Secretaria Municipal de Habitação



Implantação

Edifício 1 - Pavimentos Térreo e Tipo

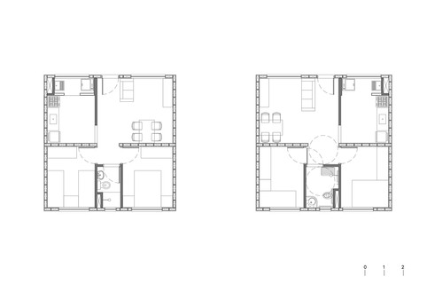
Unidades Habitacionais



Edifício 1 - Plantas do Reservatório e de Cobertura


Elevações

Elevações

Unidade Comercial


Quiosque para Lazer

