
Favela Nova Jaguaré - Setor 3
2008 – 2011
Jaguaré, São Paulo
SP, Brasil
A intervenção no sítio urbano denominado Setor 3 faz parte da iniciativa de urbanização da Favela Nova Jaguaré, coordenada pela Secretaria de Habitação da Prefeitura de São Paulo.
Prêmios
“O Melhor da Arquitetura” 2012 – Vencedor
Akzonobel 2014 – Selecionado para a Exposição
Ficha Técnica
Área Total
15.740 m2
Área do Centro Comunitário
215,00 m²
Status
Concluído
Realização
PMSP – Secretaria Municipal de Habitação


O processo de transformação da área, para garantia das condições planejadas, ocorreu a partir da demolição das edificações em situação de risco, viabilizando a construção de estruturas de estabilização geotécnica, e implementação de sistemas de infraestruturas para drenagem pluvial, redes de esgoto, abastecimento de água.
O projeto foi elaborado interdisciplinarmente conjugando as definições do urbanismo às possibilidades e restrições colocadas pelas diversas engenharias, sempre compreendendo a inserção e articulação com o restante do bairro e suas pré-existências.

Implantação




Corte Escada
Como elemento principal do projeto propomos um eixo de circulação que conecta as cotas superiores e inferiores do bairro superando um desnível de 35m, servindo também para articular os diversos níveis conformados pelos patamares onde estão localizados os equipamentos e espaços para as atividades de esporte, lazer e recreação.
Este eixo é marcado por uma série de dispositivos de circulação, como escadas, rampas e passarelas confeccionadas em estrutura metálica, que exploram de maneira lúdica o percurso permitindo que o pedestre desfrute das visuais do Vale do Rio Pinheiros, Pico do Jaraguá e demais cenários que se descortinam a partir daquele local.







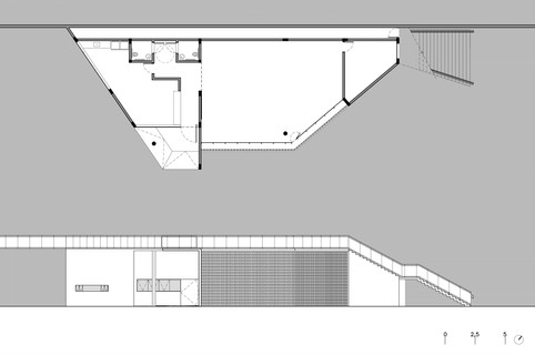
O Centro Comunitário, projetado para abrigar um espaço de informática, abriga em sua cobertura uma praça-mirante em concreto, último nível completamente acessível sem a utilização de escadas. Sua localização é estratégica: além de estar no centro da intervenção e permitir o avanço da laje que conforma a praça seca, suas paredes fazem parte da estrutura de contenção dos taludes.

Centro Comunitário - Planta / Elevação

Centro Comunitário - Cobertura / Corte Longitudinal

Corte Geral